

| こだわりのポイント ■耐震性重視の「TRUE DESIGN」 ■徹底した空間利用効率の追及 ■ゆとりを演出する"あそび”の空間 |
||||||||||||
![]() |
|
|||||||||||
| ▲昼間の1階アプローチ部は開放的に- | ||||||||||||
![]() |
||||||||||||
| ▲夜間は門扉とシャッターでセキュリティ重視に- | ||||||||||||
![]() |
||||||||||||
| ▲狭小敷地でも浴室から坪庭を眺めて入浴を- | ||||||||||||
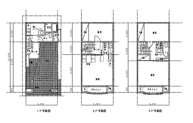
| 当モデルの設計主旨 都市の狭小敷地に建築する場合も、ローコストで耐震性に優れているJFEフレームキットの特徴が多いに活かせます。 狭い敷地であっても都市居住だからこそ車庫がほしいもの。 今回のモデルは、このフレームキットのルールを熟知した当社が独自のアイデアで車両の出入に必要な有効幅を確保しつつ耐力壁をその左右に配置し、バランスの取れた「頑丈さ」重視の安定性あるデザインを創出しました。 最高高さが10mを超えると各種の法的な制限も加わります。 そこで、1階に車庫や浴室・洗面等を配置しこの部分の階高を押さえることで、2,3階に配置した居間・食堂や個室等の居室空間は充分な天井高(2.4〜2.5m)を確保することができます。 |
||||||||||||
平面図 ![]() |
||||||||||||
| 当事務所の住宅設計コンセプトは"TRUE DESIGN"と徹底した空間利用効率の追及です。 "TRUE DESIGN"とは、目に見える部分だけではない、構造・設備の計画を含めた広い意味のデザインです。 目を引くような、いわゆる”デザイン”は施しません。 それよりも極力無駄のない構成でかつ耐震性充分な構造計画による安全性の確保が重要と考えます。 全体に素材や色彩はシンプルにまとめています。 プランニングでは動線計画を重視し、通路部分の距離を押えて居室面積を確保しています。 しかし、屋根に設けた小さなトップライトからの光が、3階のホールや2階の台所まで届くようなしかけで"あそび"の部分も設けています。同様の"あそび”は、1階浴室の窓先に設けた坪庭にもあります。狭い敷地であっても工夫次第でゆとりを感じさせる空間構成が可能です。 |
||||||||||||
本サイトに掲載の設計作品、プランニング、デザイン、図版は栗原健一が著作権を有しています。
〒140-0004
東京都品川区南品川4-5-4
パレスガル122号