本文へスキップ

構造安全性を確保し、その上での豊かなデザインを心がけている建築設計事務所です。

Kenichi Kurihara architect office

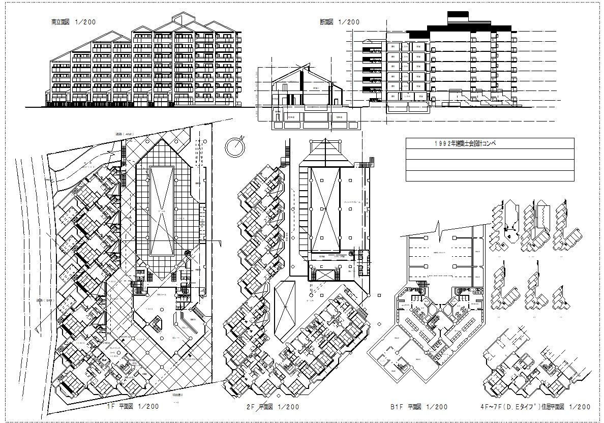
ジム併設の集合住宅CONDOMINIUM with the Gym

 
本コンペは実在の都内の敷地を想定したコンペで、与えられた条件に基づき、この敷地の法的規制(日影規制含む)もクリアして計画しました。
可能な限りの個数の共同住宅と、プール付きのジムを併設しています。
なお、行政の事情なのか、優秀作でも建築の実現には至りませんでした。
▼コンペ提出成果品の主要図面(編集済)
 ▼内部空間構成を説明するために、建物の中間階から下の部分を表示します。
 住戸は全戸、東または南向きに配置されています。
 以下に3Dモデリングによるパース出力図を紹介します。
東面
共同住宅のメインエントランスがあります。
  東面の上空からの俯瞰です。
  南面の外観です。多くの住戸がこの南面を向いています。 
南面の上空からの俯瞰です。
南面の1階住戸には専用庭兼駐車スペースを設けています。
西面の外観です。
ジム棟のプールを見ることが出来ます。
西面のやや上空からの俯瞰です。
共同住宅棟とジム棟の位置関係がわかります。
ジム棟の屋根を除いてプール室内部を俯瞰しています。
プール室の内部です。
以上、「ジム・プール併設の集合住宅」を紹介させていただきました。
かなりのボリュームのある建築物ですが、この規模でも十分に設計出来ること、
又3Dモデリングを構築し、パースのプレゼンテーションもこなせることがおわかりいただけましたでしょうか。
事務所としての設計力をご理解いただければ幸いです。

バナースペース





栗原健一建築事務所

〒140-0004 

東京都品川区南品川4-5-4 

パレスガル122号